INFO@MEHPRIVOD.RU
ООО Мехтехника
Тел.: 8 (800) 505-36-88

Мотор-редукторы планетарные МПО1М-10

Мотор-редукторы планетарные МПО1М-10

Планетарные мотор-редукторы серии МПО1М-10 обладают простотой ввода в эксплуатацию и широкими техническими возможностями. Приобрести его можно на нашем сайте заполнив форму обратной связи. Технические тонкости подробную информацию можно запросить у наших компетентных менеджеров.

Планетарные мотор-редукторы МПО1М-10 применяется в составе с промышленными миксерами и мешалками в химической отрасли. Они являются изделиями общепромышленного типа и могут применяться во всех отраслях промышленности. Мотор-редуктор имеет высокое качество и долговечен в эксплуатации так, как каждый этап сборки подвергается тщательному контролю качества. Пожелание заказчика возможна комплектация агрегата взрывозащищенным электродвигателем.

Цена: от 34 300 руб.

Базовые условия использования планетарного мотор-редуктора:

  • Устройство функционирует при постоянной/переменной нагрузке (одного направления/реверсивная);
  • Режим работы выбирается исходя из особенностей технологического процесса: с остановками или не более 24 час/сут. подряд;
  • Вал мотор редуктора осуществляет вращения в обе стороны, частота не должна быть выше 1500об/мин.;
  • Рекомендуется использовать мотор-редуктор в неагрессивной среде;
  • Особенности климатич. исполнения: У - для категорий размещения 2, 3, исполнение Т - для категории 2;
  • Температурные показатели окружающей среды в пределах: от –40°С до +50°С.

Общее описание:

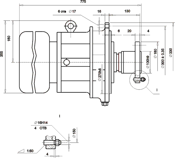
Габаритные и присоединительные размеры МПО1М-10

РИС 1. Габаритные и присоединительные размеры.
ВК-вертикальное с опорным фланцем, выходным валом вниз и кольцевой канавкой на нём

Габаритные и присоединительные размеры МПО1М-10

РИС 2. Габаритные и присоединительные размеры
Ф-2П - горизонтальное, с выходным валом в виде фланцевой полумуфты с встроенным зубчатым компенсатором

Технические характеристики мотор-редуктора МПО1М-10

Типоразмер мотор-редуктора Передаточное число Частота вращения выходного вала, об/мин Крутящий момент на выходном валу, Н. м Электродвигатель Масса мотор-редуктора, кг
Типоразмер Мощность, кВт
МПО1М-10-7,34-3,0/130 7,34 130 210 АИР112М6 3,0 125
МПО1М-10-5,74-3,0/170 5,74 170 160 АИР112М6 3,0 125
МПО1М-10-5,74-5,5/170 5,74 170 290 АИР132S6 5,5 150
МПО1М-10-7,34-3,0/195 7,34 195 140 АИР100S4 3,0 105
МПО1М-10-7,34-5,5/195 7,34 195 260 АИР112М4 5,5 125
МПО1М-10-5,74-3,0/250 5,74 250 110 АИР100S4 3,0 105
МПО1М-10-5,74-5,5/250 5,74 250 205 АИР112М4 5,5 125
МПО1М-10-5,74-7,5/250 5,74 250 278 АИР132S4 7,5 150
Максимально допускаемый крутящий момент на выходном валу 430 Н.м
Максимально допускаемая радиальная консольная нагрузка на выходном валу 1500 Н

Пример условного обозначения при заказе:

Мотор-редуктор МПО1М-10-ВК-5,74-7,5/250-АИР132S4-У3, что означает:

Мотор-редуктор планетарный типоразмера МПО1М-10; конструктивное исполнение ВК – вертикальное с опорным фланцем, выходным валом вниз и кольцевой канавкой на нем для закладного кольца, передающего осевые усилия; передаточное отношение редукторной части – 5,74; мощность электродвигателя – 7,5 кВт; частота вращения выходного вала – 250 об/мин; тип электродвигателя – АИР132S4; климатическое исполнение – У и категория размещения – 3.